
- 服务热线:
0531-55505423
传 真:0531-55505423
手 机:15562670348
在线QQ:836707979、942138324
地 址:济南市槐荫区新沙民营工业园二街2号
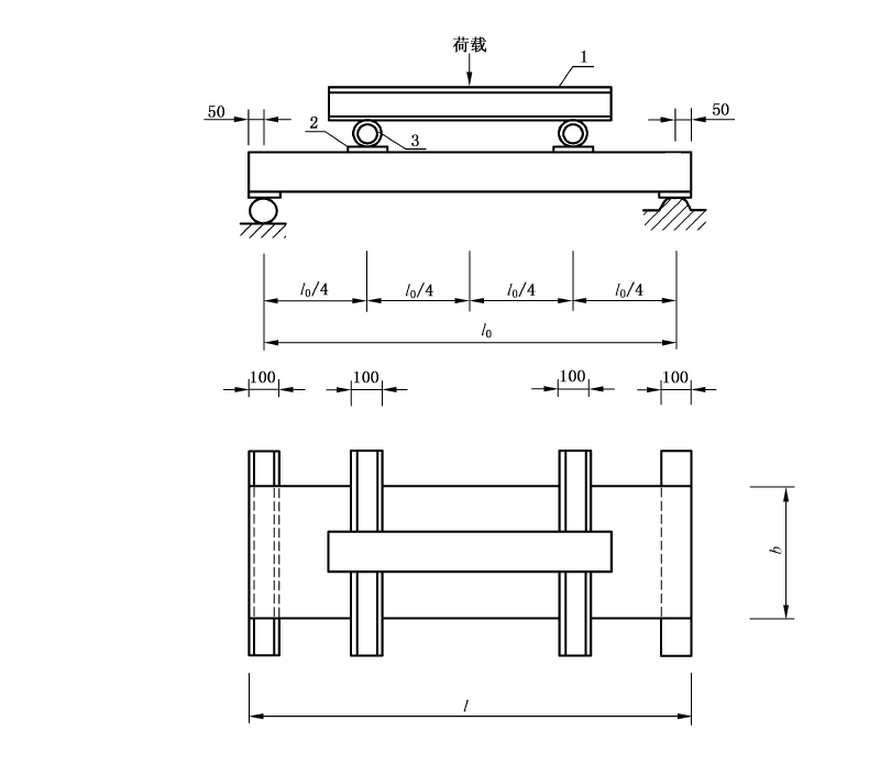
蒸压加气混凝土板抗折试验机可测试蒸压加气隔墙板、蒸压加气混凝土板、石膏空心条板,屋面板,外墙板等各种新型建筑材料的初裂载荷和破坏载荷,短期挠度试验以及蒸压加气混凝土钢筋粘着力试验(采用顶出试验法),符合标准GB∕T 11969-2020蒸压加气混凝土性能的试验方法和GB∕T 15762-2020蒸压加气混凝土板等相关要求。


结构特点:采用双空间门式结构,主机部分由四根导向立柱、上横梁、中横梁、工作台组成落地式框架,调速系统安装在工作台下部。具有调速精度高、范围宽、性能稳定的日本松下交流伺服电机通过同步齿形带减速系统带动滚珠丝杠副旋转,滚珠丝杠副驱动中横梁,带动拉伸辅具(或压缩、弯曲等辅具)上下移动,实现试样的加荷与卸载。该结构保证机架有足够的刚度,同时实现高效、平稳传动。
试验过程:
1、所需要检验的板应在试验条件下存放不少于24小时,使试验板与实验室环境条件基本一致后才能进行测量和试验。
2、测量并记录板的规格,包括长度,宽度和厚度,度1mm。
3、测量并记录板的自重,到10N。
4、测量并记录加载用加压钢板、滚筒和横梁的总重量,到10N
5、把待检测板安装到试验机的支撑上,对屋面板和楼板,受力面应与实际使用相符,对外墙板和隔墙板,应随机摆放受力面。
6、在板搁置稳定后,安装电子位移计,启动位移自动记录仪,初始读数归零。
7、把加压板、滚筒和横梁搁置在试验板上。
8、启动试验机开始加载。加载速度为:跨径中央的弯曲变形达到每秒0.05mm左右。
9、当加载到试验板出现条裂缝,应暂停加载,读取和记录初裂缝集中载荷实测值,跨中挠度实测值和两端支座位移实测值。当试验为隔墙板时,试验结束。
10、屋面板、楼板、外墙板继续加载到出现规定的破坏检验标志时,停止加载,记录破坏时集中力荷载实测值,试验结束。
结构原理:

技术参数:
|
|
设备名称 |
GB/T 15762-2020蒸压加气混凝土板抗折试验机 |
|
|
1 |
最大试验力 |
100KN/100000N |
|
|
2 |
试验机级别 |
0.5级 1级 |
|
|
3 |
负荷测量范围 |
0.4%-100%FS(0.5级)/1%~100%FS(1级) |
|
|
4 |
示值相对误差 |
±0.5%(0.5级)/±1.0%以内(1级) |
|
|
5 |
试验力分辨力 |
1/±300000F.S(全程分辨力不变) |
|
|
6 |
变形测量范围 |
0.2%-100% |
|
|
7 |
力控速率调节范围 |
0.005%-5%FS/S |
|
|
8 |
力控速率控制精度 |
速率<0.05%FS时,为±1%设定值以内; 速率 ≥0.05%FS时,为±0.5%设定值以内; |
|
|
9 |
变形速率调节范围: |
0.005~5%FS/s; |
|
|
10 |
变形速率控制精度 |
速率<0.05%FS/s时,为设定值的±1%以内; 速率≥0.05%FS/s时,为设定值的±0.5%以内; |
|
|
11 |
位移速率调节范围 |
0.005~500mm/min;(最高速可到1000mm/min) |
|
|
12 |
位移速率控制精度 |
为设定值的±0.2%以内; |
|
|
13 |
恒力、恒变形、恒位移控制范围 |
0.5%-----100%FS |
|
|
14 |
恒力、恒变形、恒位移控制精度 |
设定值≥10%FS时,为设定值的±0.5%以内 设定值<10%FS时,为设定值的±1%以内 |
|
|
15 |
横梁移动行程 |
750mm |
|
|
16 |
有效跨度 |
450mm |
|
|
17 |
电源电压(必须有可靠的接地措施) |
~220V±10% 50Hz; |
|
|
18 |
机器功率 |
1.5KW |
|
|
19 |
主机外型尺寸(长宽高) |
680x460x1860mm |
|
|
20 |
机器重量 |
≈320kg |
|
- [2022-06-06]土工布拉力试验机的力学试验(图文)
- [2022-03-25]橡胶拉力试验机存在门式和单臂两种结构,有什么区别?(图文)
- [2022-03-14]如何判断市场上电子拉力试验机的好坏?(图文)
- [2022-03-11]关于橡胶材料力学性能的介绍常见问题解答(图文)
- [2022-03-01]橡胶拉力试验机的相关介绍(图文)
- [2022-02-10]双臂式拉力试验机哪里有卖?厂家供应双臂拉力试验机(图文)
- [2022-02-08]双柱万能拉力试验机参数配置和技术指标(图文)
- [2022-02-06]数显式拉力试验机都有哪些种,最大能拉伸多大力?
- [2022-01-28]伺服拉力试验机微机的各项参数详解(图文)
- [2022-01-25]电动双柱拉力试验机的搜索内容很乱,纵驰测控帮您解决(图文)
- [2022-01-22]电子式单柱拉力试验机(图文)
- [2022-01-22]微控式拉力试验机只的是什么?怎么微控(图文)
- [2022-01-21]单柱微电脑拉力试验机功能用途,结构特点和技术参数(图文)
- [2022-01-21]数显式双臂拉力试验机相对于市面上的试验机有什么优势?(图文)
- [2022-01-18]夹层结构/复合材料/铝塑复合板常用检测配件(图文)
- [2022-01-14]GB5725-2009安全网标准规定的试验夹具以及检测方法(图文)
- [2021-12-24]橡胶拉伸试验机在做橡胶拉力试验时要满足以下条件(图文)
- [2021-12-23]不懂土工布拉力试验机技术要求?(图文)
- [2021-12-20]承插型盘扣式钢管弯曲试验机标准及使用说明(图文)
- [2021-12-17]电子万能试验机的这些常见故障可学会自行处理(图文)



